Henry Construction LLC
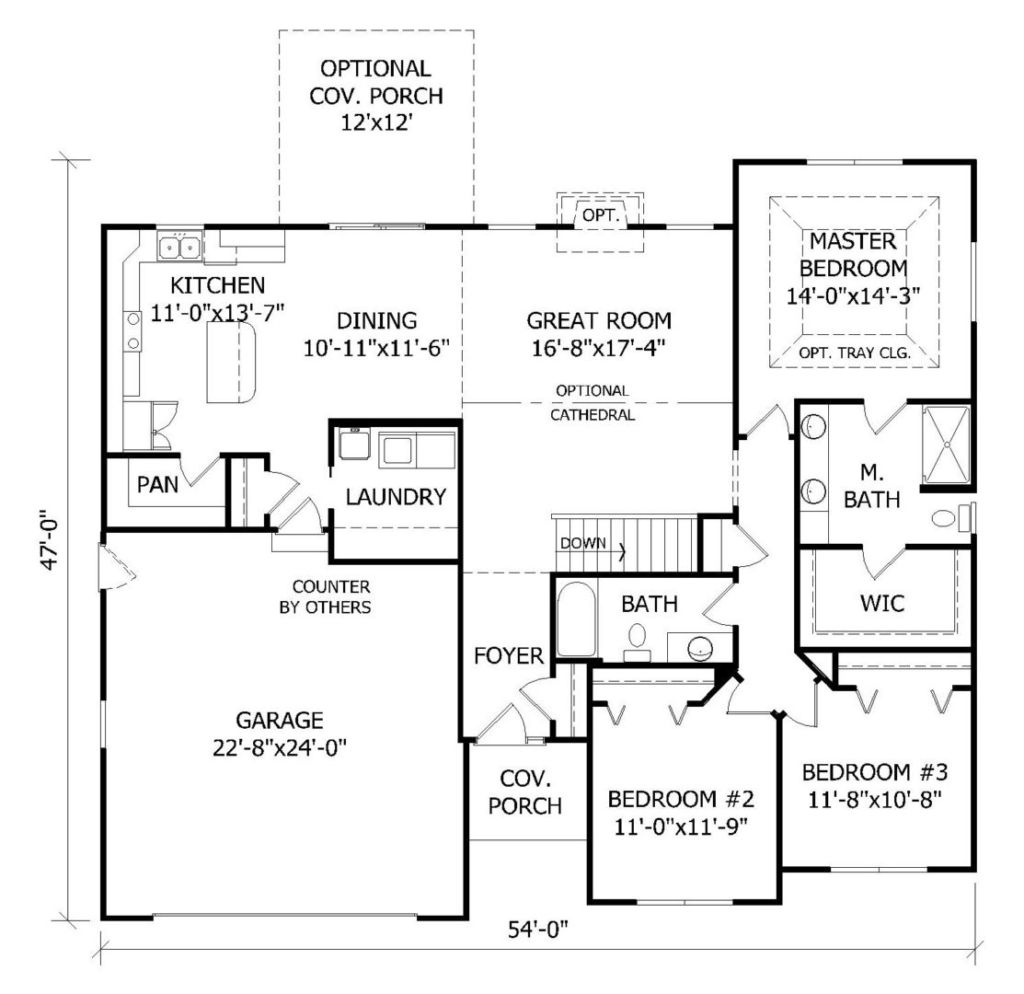
This attractive 3 bedroom, 2 bath home is just over 1,700 sq. ft. Build this home, and you’re bound to enjoy entertaining family and friends with the open floor plan and optional covered porch!
http://buildhenryconstruction.com/our-floorplans/rockshire/
Amwood Homes, Inc.
About Henry Construction LLC
Whether you want to choose from one of our many floor plans or begin designing your own custom plan, we are here to support you through!!
Contact Us
© 2026 Amwood Homes, INC. - All Rights Reserved